5 locali in vendita

Chieri, Corso Luigi Cibrario
€ 230.000
5 locali 5 locali
160 Mq 160 Mq
1 bagno 1 bagno

5 locali in vendita

Chieri, Corso Luigi Cibrario

Descrizione annuncio

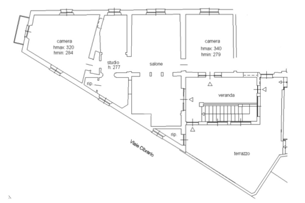
In una delle zone più richieste di Chieri, comoda e ben servita, proponiamo in vendita appartamento di ampia metratura situato al primo ed ultimo piano di un piccolo contesto senza spese condominiali.

Attualmente l’immobile è totalmente da ristrutturare ed è composto da una cucina abitabile, adiacente ad una camera da letto, un ampio salone, uno studio, una seconda camera matrimoniale dotata di balcone privato e un pratico ripostiglio.

La distribuzione interna, grazie alla generosa metratura, si presta a diverse soluzioni progettuali, consentendo una riorganizzazione moderna e funzionale degli spazi.

L’ingresso all’abitazione avviene direttamente da un generoso terrazzo privato di circa 32 mq che affaccia su Corso Cibrario, uno spazio esterno di notevole dimensione che rappresenta un vero valore aggiunto: ideale per pranzi all’aperto, momenti di relax e per chi desidera uno sfogo esterno vivibile in ogni stagione.

Dal terrazzo si accede a una luminosa veranda che funge da disimpegno centrale e collega in modo funzionale i diversi ambienti della casa, oltre a garantire accesso al piano inferiore tramite scala interna.

La presenza di numerose finestre garantisce ottima luminosità naturale durante tutto l’arco della giornata.

Una soluzione ideale per chi desidera personalizzare gli spazi secondo il proprio gusto e le proprie esigenze.

Completano la soluzione una cantina al piano interrato e la possibilità di un box auto di circa 25 mq.

Mostra tutto

Nelle vicinanze

Trasporto pubblico Trasporto pubblico
Chieri
Chieri
320 m
Annunziata
Annunziata
30 m
Trieste
Trieste
210 m
Ricariche auto elettriche Ricariche auto elettriche
LIDL Chieri
1,2 Km
Scuole Scuole
Scuola Media Statale Mario Ludovico Quarini
780 m
Scuola Primaria Nostra Signora della Scala
850 m
Scuole
890 m
Istituto d'Istruzione Superiore "B.Vittone"
1,4 Km
Scuola Statale "Maddalena"
1,4 Km
Farmacia Farmacia
Farmacia
80 m
Farmacia Comunale 2
350 m
Farmacia Regis
450 m
Farmacia Burzio
470 m
Piazza
590 m
Ospedali Ospedali
Ospedali
1,1 Km
Supermercati Supermercati
Ekom
580 m
Mercatò
650 m
Carrefour Market
650 m
Mercatò Chieri - Via Riva
900 m
In's Mercato
1,1 Km
Negozi Negozi
Giordo Salvatore
150 m
Tutto Moda
190 m
Wood Sas di Bosco Franco & C.
460 m
Il Forno di Ronco
480 m
Benetton
600 m
Bar Bar
Corso Matteotti 69
1,0 Km
Il Dolce Caffè
1,1 Km
Ristoranti Ristoranti
Old Building Pub Pizzeria
240 m
La Cantina del Convento
270 m
Todra Griglieria Ristopub
300 m
City2 Istanbul Turkish Kebab
460 m
Eataly in Collina
590 m
Mostra tutto

Caratteristiche

Rif.:
61186178
Piano:
1 di 2 (ultimo Piano)
Box:
1
Balconi:
1
Terrazzi:
1
Camere da letto:
2
Mostra tutto
Prezzo Prezzo
€ 230.000
Rata mutuo Rata mutuo
€ 1.093 / mese
Spese annue Spese annue
€ 0
Proponi il tuo prezzoProponi il tuo prezzo

Classe Energetica

G
G
G
G
G
G
G
G
G
Anno di costruzione:
1900
Riscaldamento:
Autonomo
Tipo impianto:
A radiatori
Tipo alimentazione:
Metano

Ti interessa visionare l'immobile?

Fissa un appuntamento  Fissa un appuntamento

Richiedi informazioni

Clicca su Leggi per aprire l'informativa
* Questi campi sono obbligatori

Calcola il tuo mutuo

Semplice e senza impegno
Anticipo

( % )
Mutuo

( % )

pochi semplici passi

inserisci i tuoi dati
Questionario completato
Grazie per aver richiesto un appuntamento senza impegno con un nostro Consulente del Credito e Assicurativo.

Hai inserito correttamente tutti i dati necessari e a breve riceverai una e-mail con un link da convalidare per inviare i tuoi dati.
Affiliato
Chieri 3.0 Sas
Via Cesare Battisti, 1/C 10023 Chieri (TO)

Il nostro staff


  • Saverio Di Ganci
    Collaboratore

  • Giulia Sanna
    Coordinatrice

  • Christian Panza
    Affiliato
Via Cesare Battisti, 1/C 10023 Chieri (TO)
Zona: Chieri
Mostra su mappa
Affiliato
Chieri 3.0 Sas
Via Cesare Battisti, 1/C 10023 Chieri (TO)

2026 Tecnocasa Franchising S.p.A. - P. IVA 08365160152 - Via Monte Bianco 60/A 20089 Rozzano (MI). Ogni agenzia ha un proprio titolare ed è autonoma. Privacy policy | Policy utilizzo | Cookie policy